Login:
Password:
Connexion
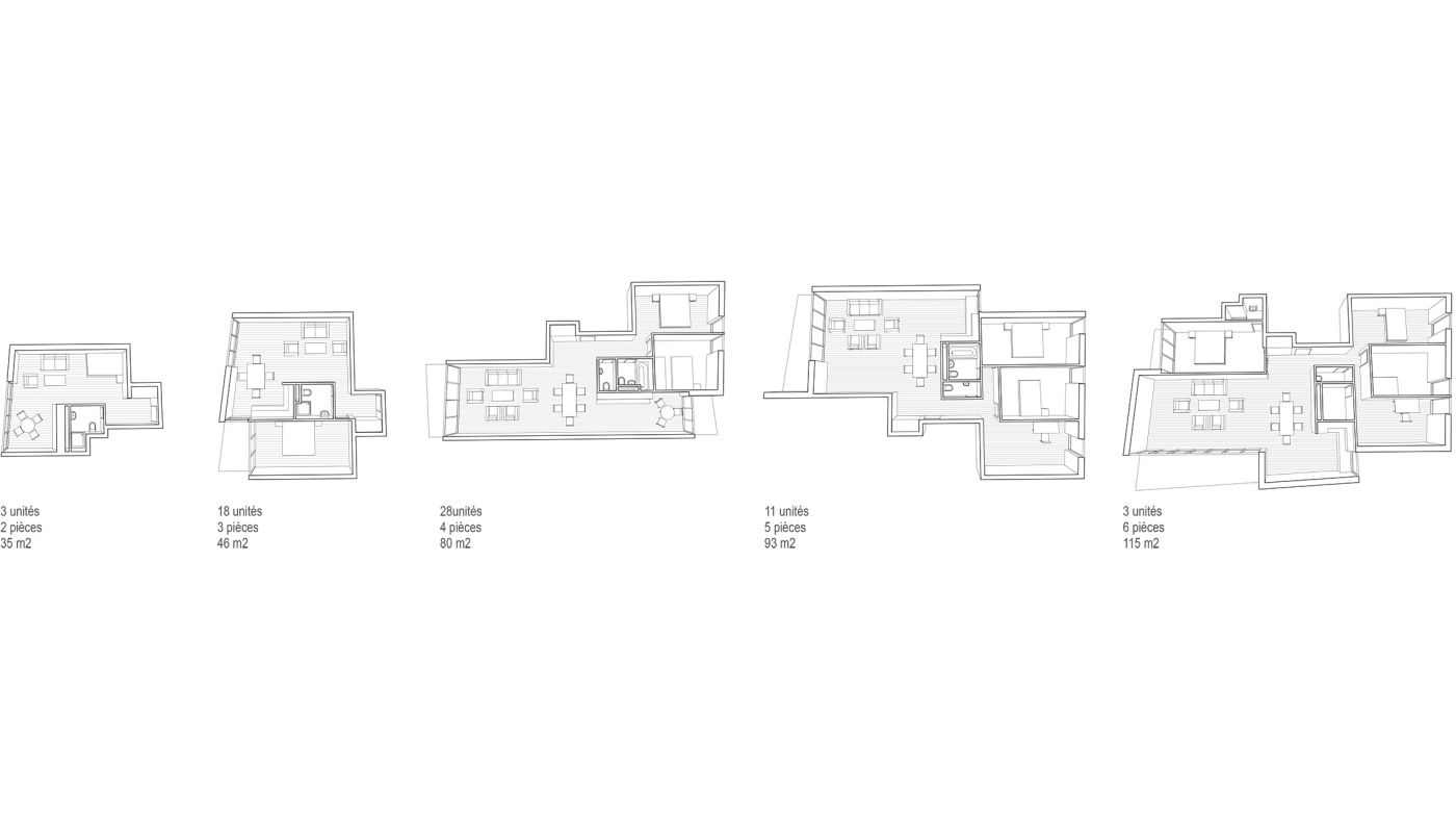
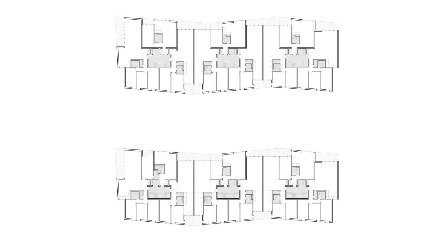
Concours Petite Boissière
Petite Boissière .Localisation . GenèveAnnées . 2011Programme . Logements
2eme rang, 1er prix