Login:
Password:
Connexion
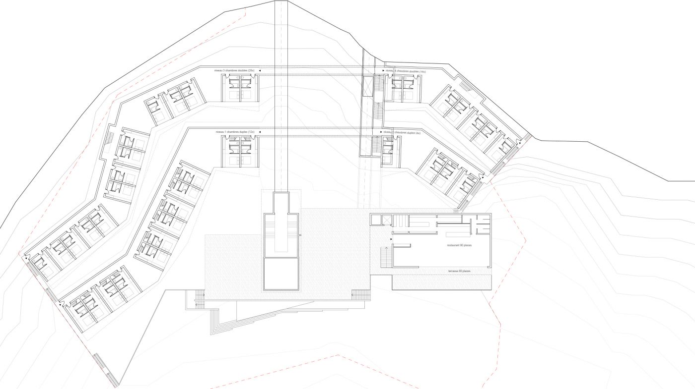
Concours Genuis Loci
Genius Loci .Localisation . St-Luc, ValaisAnnées . 2011Programme . Hôtellerie
1er Prix