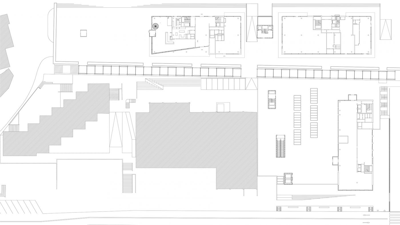
Versoix Centre Sud




Versoix Centre Sud .
Localisation . Versoix, Ge
Années . 2005-2013
Programme . commerciales, industrielles et artisanal
Architecte Conception . Dominique Grenier Architecture
Architecte réalisation . Dominique Grenier Architecture
SBP . 28'000 m2
Crédits photographiques . Samuel Zeller

