Les Vergers





Les Vergers .
Lieu . Meyrin/GE
Date . 2015 - 2019
Programme . Construction d'un immeubles de logements
Architecte conception . Dominique Grenier Architecture
Architecte réalisation . Dominique Grenier Architecture
SBP . 11'353 m2
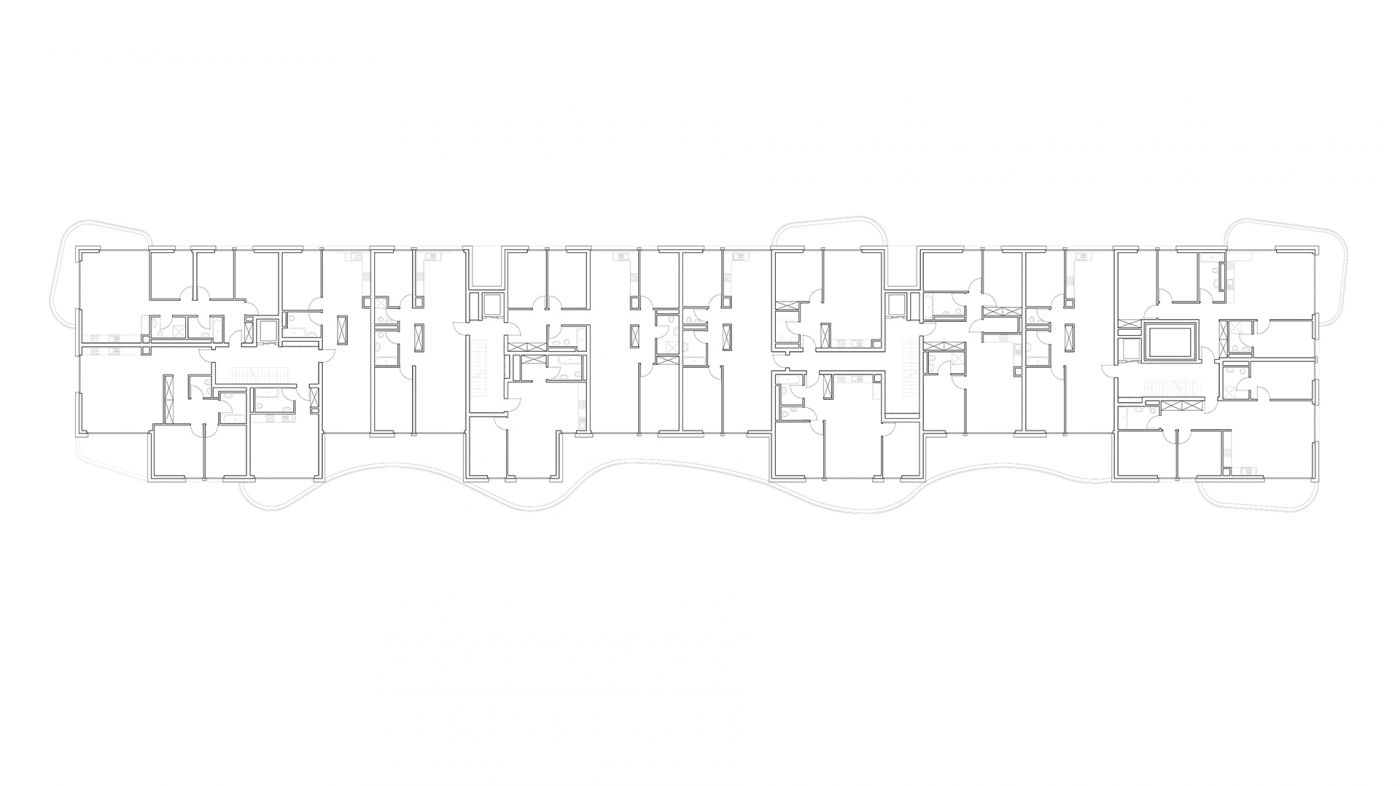
Les Vergers





Les Vergers .
Lieu . Meyrin/GE
Date . 2015 - 2019
Programme . Construction d'un immeubles de logements
Architecte conception . Dominique Grenier Architecture
Architecte réalisation . Dominique Grenier Architecture
SBP . 11'353 m2