Albert Dufour



Albert Dufour .
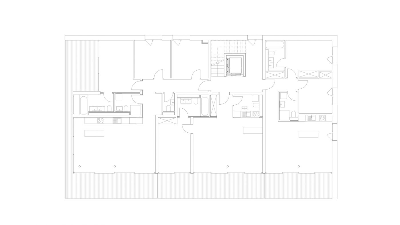
Lieu . Collonge-Bellerive/GE
Date . En cours
Programme . Construction d'un immeubles de logements
Architecte conception . Dominique Grenier Architecture
Architecte réalisation . Dominique Grenier Architecture
SBP . 807 m2

